You are using an outdated browser. For a faster, safer browsing experience, upgrade for free today.
360.000 €
Novità
  • 1 Bagni
  • 4 Locali
  • 240 Mq
Indirizzo:
Città:
Solbiate comasco
Zona:
Provincia:
Como
  • su più livelli piano
  • Classe G
  • Riscaldamento Autonomo
  • Cucina Abitabile
  • Giardino Privato di 700 mq
  • Cantina
  • 1 terrazzo di 25 mq
  • 4 parcheggi

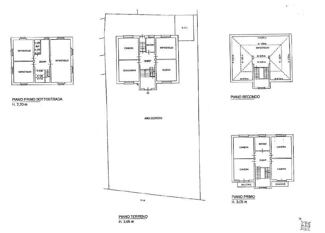
Scopri questa affascinante villetta bifamiliare in vendita, un'opportunità imperdibile per chi cerca spazio e versatilità. L'immobile è composto al piano terra da un ampio trilocale, con cappotto e ristrutturato nel 2021, dove il luminoso soggiorno si apre su un delizioso terrazzo, ideale per rilassarsi all'aria aperta. La cucina abitabile è perfetta per preparare pranzi in famiglia, mentre le due camere matrimoniali garantiscono il massimo del comfort. Con due bagni a disposizione, la funzionalità è assicurata. Al piano superiore, un appartamento al rustico offre la possibilità di personalizzare ulteriormente lo spazio secondo le proprie esigenze; gli impianti sono già predisposti. Non dimenticare la cantina al piano interrato e la mansarda, che offrono ulteriore spazio per riporre oggetti o creare un'area hobby. Il giardino di 700 mq è un vero e proprio angolo di paradiso, perfetto per godere di momenti di relax all'aperto o per organizzare feste con amici e familiari. Con posti auto disponibili e una superficie commerciale di 240 m², questa proprietà rappresenta una soluzione ideale per chi cerca comfort e praticità. Non perdere l'occasione di visitarla! LA VIA INSERITA E' PURAMENTE INDICATIVA PER PRIVACY DEI PROPRIETARI, L'IMMOBILE RIMANE NEI LIMITROFI DELLA POSIZIONE INDICATA.

Richiedi informazioni

In evidenza

Iscriviti alla Newsletter

Inserisci la tua e-mail